Проект
в ЖК NEVA HAUS

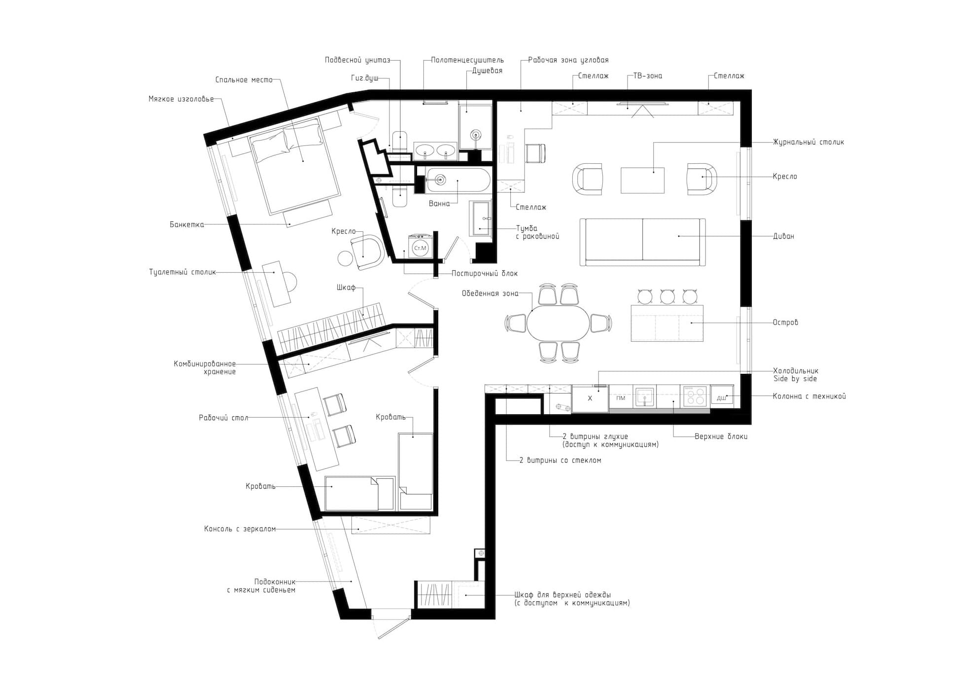
ЖИлые помещения

Прихожая освещена естественным светом, который отражается в зеркалах и глянцевой мебели, создавая эффект объема. В центре находится комод с зеркалом, слева — подоконник-сидение с радиаторной решеткой, справа — шкаф для хранения и скрытия коммуникаций. Стены украшены молдингами, декоративной штукатуркой и светильниками, что придает пространству насыщенность и глубину. Напольное покрытие выполнено из керамогранита с графичной укладкой и золотым профилем. Кухня-гостиная является продолжением прихожей по стилю и цвету, разделена на зоны кухни-столовой, гостиной и кабинета. Здесь используются встроенная мебель, остров с рабочей поверхностью и барной стойкой, большой диван, обеденный стол на 8−10 человек и функциональное освещение для каждой зоны.

Дизайн-проект выполнен в современном стиле с гармоничным сочетанием элементов неоклассики и арт-деко, что создает элегантную и уютную атмосферу для семьи с двумя маленькими детьми. Основное требование заказчиков — просторные и функциональные помещения кухни-гостиной и спальни, обеспечивающие комфорт и удобство для всей семьи. Особое внимание уделено эргономике и зонированию, чтобы создать удобные места для отдыха, работы и игр детей. Использование качественных материалов и декоративных элементов подчеркивает стиль проекта и обеспечивает долговечность интерьера.

Прихожая и кухня-гостиная

#ар-деко
#золотая фурнитура
#темный керамогранит

Квартира

Современный/Ар-деко

112м²

Мастер спальня

Основным пожелание к проектированию спальни было просторное пространство. Два окна, не должны были перекрываться перегородками. На площади комнаты необходимо было предусмотреть большой гардеробный шкаф, спальную зону, кресло для отдыха и релакса, туалетный столик. Мастер-спальня выполнена в более темных тонах. Здесь использовался черный потолок для создания обволакивающего ощущения. В отделке стен применена декоративная штукатурка и мягкое изголовье во всю стену с золотыми металлическими вставками.

Мастер-санузел

Мастер-санузел — продолжение спальни. Его потолок и рельефная панель, спускающаяся от потолка над керамогранитом — окрашены в черный. Золотой молдинг разделяет отделочные материалы на стенах, огибая углы пространства. Зона душевой выделена объемным блоком в строительном исполнении. Отделка душевой — темный матовый керамогранит. Гибкий неон оранжевого света отделяет его от черного участка стены, переходящего в потолок.

Детская

Детская комната спроектирована для девочки и мальчика разного возраста. Цвета выбраны нейтральные, подходящие под оба пола. Пространство детской поделено на зоны: учебная, игровая и зона сна. Рабочий стол предусмотрен для двоих детей у окна в зоне естественного освещения. Мебельная стена является зоной хранения вещей, игрушек, а также тв зоной. Цветовая палитра мебели соответствует цветам стен, чтобы раствориться в пространстве.