Прихожая и коридор

Проект в ЖК ВТБ Арена Парк

ЖИлые помещения

Входная зона оформлена с ярким акцентом на полу — керамогранит с рисунком под чёрный и белый мрамор выполнен в технике фигурной резки и дополнен латунным профилем. Пространство украшают декоративные молдинги и INVISIBLE-двери, визуально встроенные в стену.

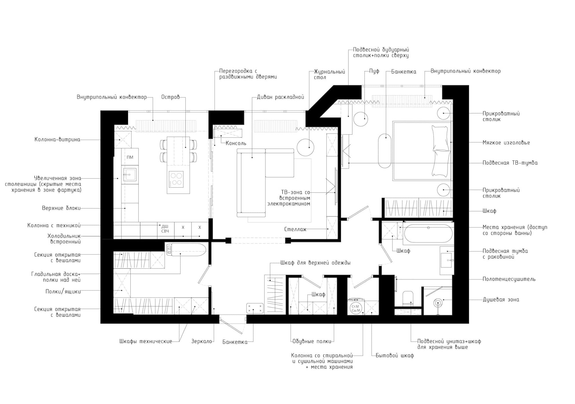
Дизайн-проект выполнен в стиле неоклассика с элементами ар-деко. Задача — создать интерьер современной классики с использованием дорогих материалов и нестандартных решений. Свободная планировка позволила гибко распределить функциональные зоны. В оформлении сочетаются лепнина, мрамор, латунь и выразительные текстуры — для ощущения уюта и премиального уровня.

Квартира

#латунь
#мрамор
#премиум

Ар-деко, Неоклассика

80м²

Санузел

Санузел выполнен из керамогранита под белый и чёрный мрамор с карамельными прожилками. За ванной устроена ниша с подсветкой и акцентной плиткой под оникс. Душевая выделена перегородкой и оформлена тёмной плиткой с металлическим профилем. Вся сантехника и фурнитура — в чёрном цвете.

Кухня оформлена в сдержанной классике с элементами ар-деко. Контраст белых и тёмных фасадов подчёркивает архитектуру помещения и создаёт чёткий ритм. Фартук и остров выполнены из керамогранита под мрамор, а барные стулья с велюровой обивкой добавляют интерьеру глубины и мягкости. Подвесная хрустальная люстра становится композиционным центром и связывает кухню с зоной гостиной.

Кухня

Гостиная оформлена с выразительной симметрией и благородной палитрой глубоких тёмных оттенков. Центром композиции стал мягкий велюровый диван насыщенного синего цвета, поддержанный графичной мебелью и фактурным ковром. ТВ-зона обрамлена декоративными панелями с интегрированным камином и витринными шкафами с подсветкой. Хрустальная люстра, лепнина и акценты из тёмного мрамора с латунными вставками создают ощущение утончённой классики с элементами ар-деко.

Гостиная

Мастер-спальня

Акцент выполнен на изголовье кровати, это комбинация мягких панелей с металлическим профилем и зеркалами по бокам. Вместо привычных тумбочек используются стильные столики чтобы положить телефон или ноутбук. Шкаф под покраску в цвет стен, которые не отвлекает внимание на себя. Напротив кровати ТВ зона и небольшой рабочий уголок для ноутбука. Стены и потолки выполнены из молдинга с использованием угловых декоративных элементов.