Прихожая, кухня-гостиная

ЖИлые помещения

Проект в ЖК D1

#черные акценты
#панели
#отдельная гардеробная

Тёмные фасады кухни сочетаются с фактурной каменной столешницей и встроенной подсветкой, создавая эффект глубины. Обеденная зона дополнена акцентным светильником, визуально объединяющим пространство. Деревянные рейки и вертикальные линии добавляют ритма и тепла в композицию. Пространство выглядит цельно и гармонично благодаря сдержанной палитре и точной работе со светом.

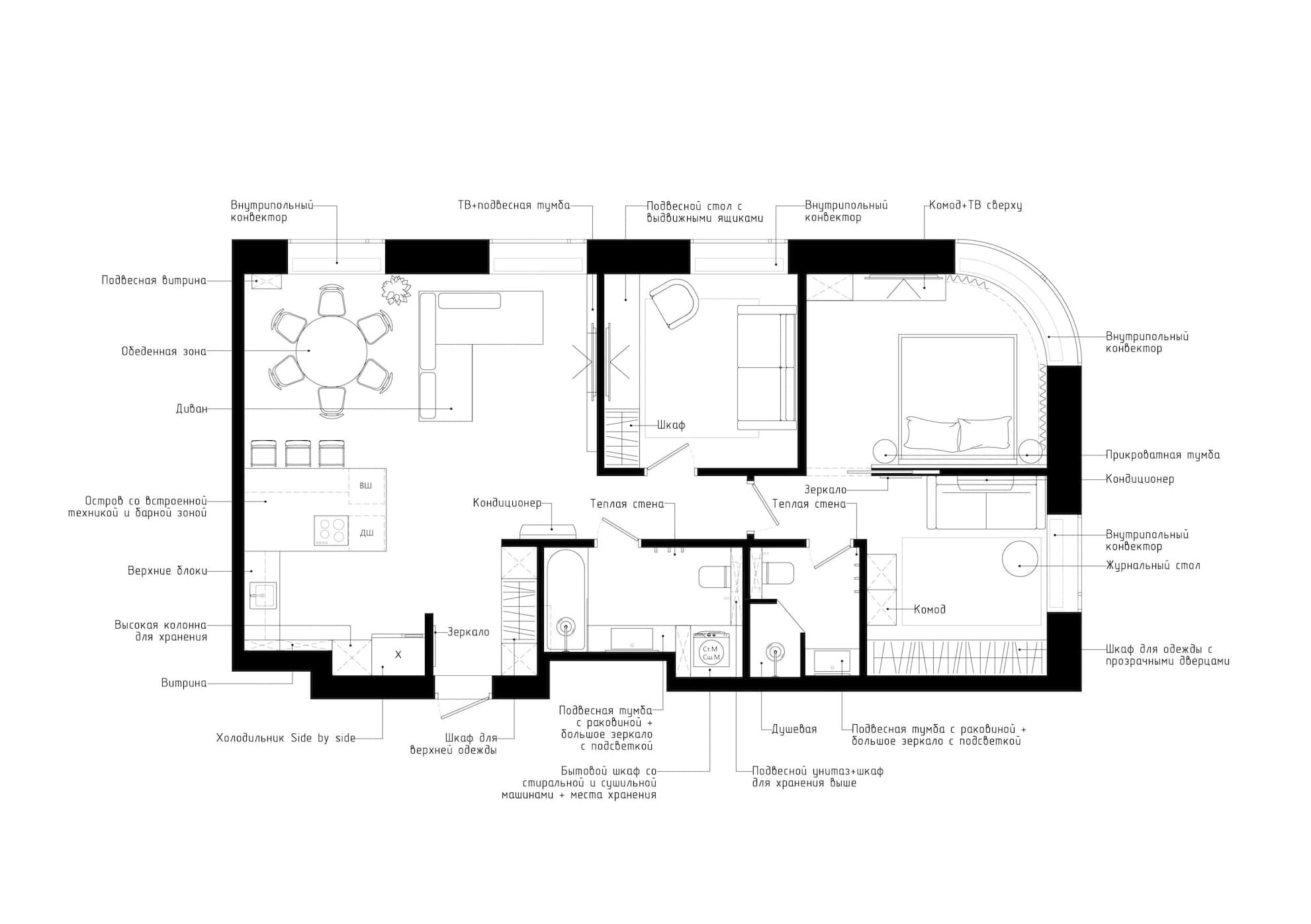
Дизайн-проект выполнен в стиле минимализм с акцентом на чистую геометрию, благородные материалы и продуманное освещение. Пространство организовано максимально функционально, без визуального шума и лишних деталей. Мягкая подсветка подчёркивает архитектурные линии и делает интерьер глубоким и уютным.

Современный, Минимализм

Квартира

94м²

Мастер спальня

Спальня в тёмной палитре с акцентом на геометрию и выразительные фактуры. Стена за изголовьем выполнена из деревянных панелей с графичным узором и встроенной подсветкой, создающей эффект уюта. Полупрозрачная раздвижная перегородка добавляет лёгкости и визуально расширяет пространство, а светотеневая игра делает интерьер глубоким и атмосферным.

Функциональное пространство, сочетающее в себе зону отдыха и рабочее место. Акцентная стена с деревянными рейками добавляет глубины и тепла в интерьер. Встроенные шкафы и лаконичный стол обеспечивают порядок и визуальную лёгкость. 

Гостевая

Ванная

Интерьер выполнен в благородной тёмной палитре с акцентом на монолитные поверхности и минимализм. Каменная раковина с интегрированной чашей и зеркало с подсветкой создают строгий и собранный образ. Стены облицованы крупноформатным керамогранитом с лёгкой фактурой бетона. Чёрная сантехника добавляет графичности и подчёркивает архитектурность пространства. 

Душевая

Интегрированная раковина, встроенное зеркало с подсветкой и строгие формы создают цельный и чистый образ. Душевая зона выделена светлой отделкой, что визуально расширяет пространство. Чёрная фурнитура добавляет глубины и подчёркивает геометрию.