прихожая

Проект на Серебрякова

ЖИлые помещения

В прихожей стены у нас выделены оливковым и кремовым цветами. На полу при входе плитка с узором переходит в кварцвиниловую плитку под светлое дерево. В коридоре расположены на стенах и потолке световые линии, которые разбавляют интерьер и делают его более интересным. Надпись в коридоре при входе в спальную комнату, для заказчиков стала неотъемлемым девизом жизни.

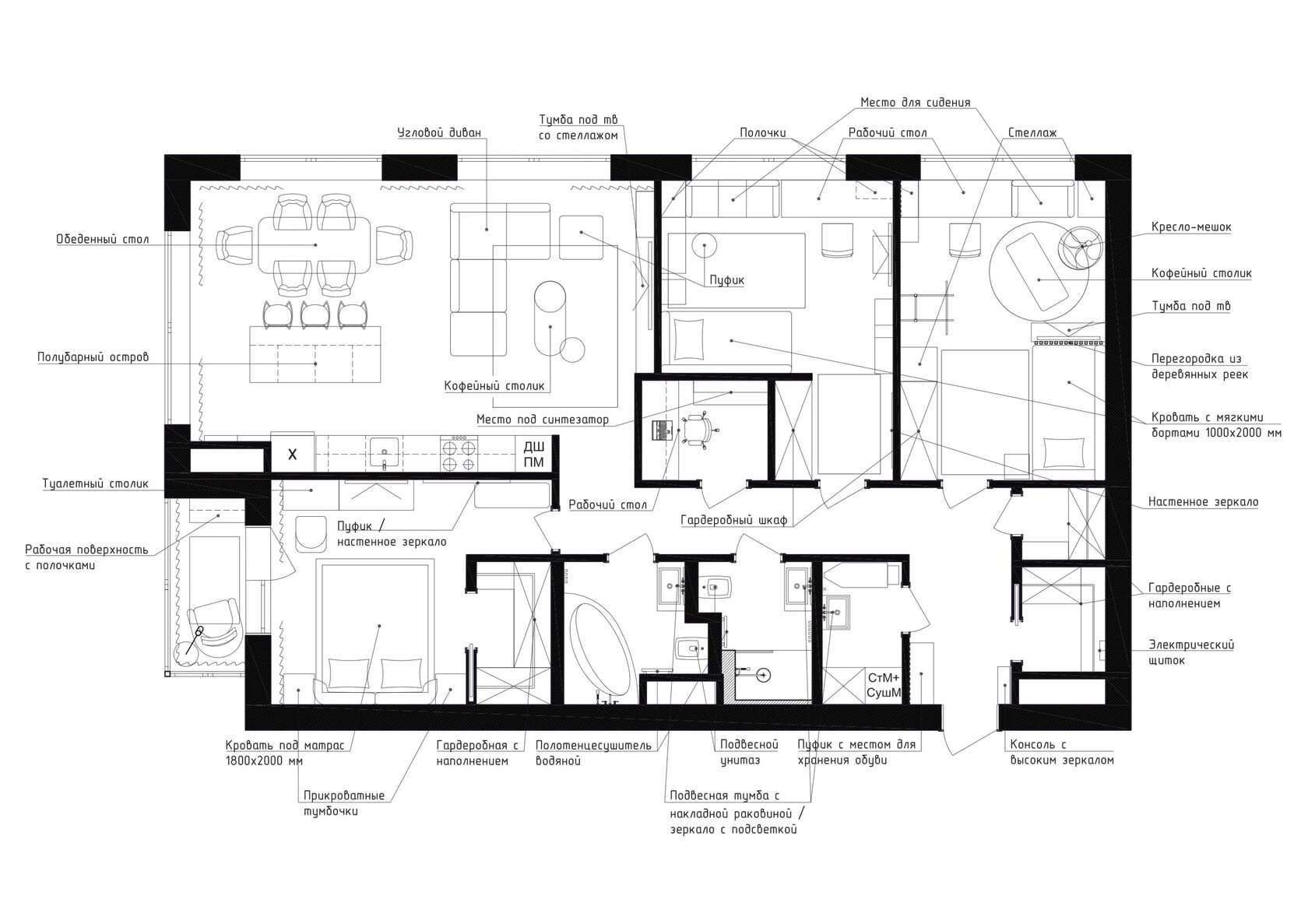
Квартира принадлежит молодой семье, состоящей из четырех человек: родители и двое детей, сын и дочь. Пожеланием заказчика было создать дизайн-проект в современной стилистике с легким уклоном в классику и небольшим процентом минимализма. Перепланировка была продиктована определением мокрых зон, находящихся в разных концах квартиры, поэтому старались реализовать максимум пожеланий заказчиков при таких исходных данных. Интересным моментом было использование 3д панелей за TV в гостиной комнате и в хозяйской спальной.

#зеленый цвет
#золото
#молдинги

Квартира

Современный, Минимализм

115м²

Спальня родителей имеет более классическую стилистику. На стенах размещены молдинги, освещение с акцентными золотыми деталями. Стена напротив кровати выполнена из декоративных панелей молочного цвета с подсветкой и большим зеркалом, что делает помещение больше и светлее.

Мастер спальня

В поддержку стилистики мастер спальни на одной стене, в рабочей зоне, было решено разместить молдинги. Рабочий стол мы сделали подвесной с небольшим ящиком для хранения. На противоположной стороне у нас находится зона отдыха с креслом, где можно вечером почитать книгу.

Лоджия при мастер спальне

Кухня с островом в цвете оливки в сочетании с серым, а также узорчатой плиткой на фартуке. Обеденная зона с акцентными синими тонами, гостиная зона с серым, оливковым и синим. Одной из задач было сделать данное помещение просторным для вечерних семейных посиделок. Освещение в этом помещение берет на себя много внимание и четко выделяет три зоны — зона отдыха и просмотра ТВ, кухонная и обеденная.

Кухня-гостиная

Душевая

При разработке дизайна санузлов стояла задача сделать их светлыми, но с необычными акцентами. В душевой мы выбрали основную плитку в светло-бежевых и серых тонах, зону душевой выделили узорчатой плиткой, а стену за раковиной и зеркалом было решено выделить плиткой сотами с вставками из мха.

Детская мальчика

В этом помещение получилась удивительная яркая, но в то же время не кричащая цветовая палитра — приглушенный синий и солнечный желтый. В комнате есть 3 зоны — зона сна, игровая и рабочая. Зону сна и игровую мы отделили реечной перегородкой, на которую повесили телевизор.

Детская девочки получилась очень нежная в пудро-розовых тонах. В комнате также выполнено зонирование — зона сна, игровая и рабочая. Важным пожеланием было здесь мягкую зону у окна. При входе разместили большое зеркало с подсветкой, как у мамы в комнате.

Детская девочки