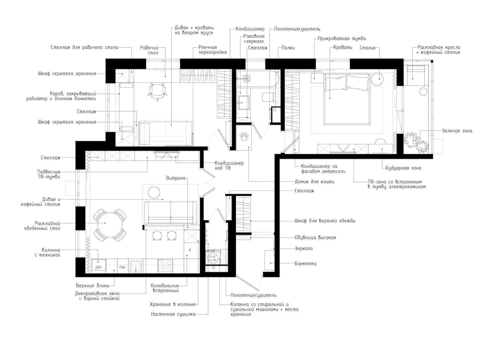
ЖИлые помещения

Зона прихожей отделена от остального пространства декоративной ассиметричной аркой, для отделения грязной зоны от остальных помещений. Пространство коридора и прихожей объединяет светлая керамогранитная плитка, которая хорошо подходит для интенсивных нагрузок и более проста в уборке. Стены также окрашены в единый цвет — светлый серо-бежевый цвет и дополнены декором из молдингов того же цвета. На месте отдельного туалета с дверью из коридора было решено сделать постирочную. Так как помещение очень небольшое, было решено организовать дополнительно навесное хранение на стенах, а в шкафу устроить подсветку полок.

Прихожая и коридор, постирочная

Дизайн-проект квартиры разработан в стиле эклектика с преобладанием элементов современной классики — модерн. Помещения выполнены в сдержанных светлых тонах с яркими акцентами. В помещениях преобладают холодные акцентные оттенки, теплый фон стен. Проектом предусмотрено сохранение существующей планировки с небольшими корректировками.

Проект в ЖК Южная Битца

Квартира

Современный, Эклектика

74 м²

#арка
#стеклянная перегородка
#цветочный орнамент

Кухня-гостиная

Зона кухни гостиной отделена от общего коридора стеклянной дверью. Основной объем стен окрашен в светло-бежевый цвет, такой же, как в коридоре. Используются молдинги и декоративные ребристые панели, окрашенные в цвет стены, в качестве дополнительного декора, чтобы разнообразить монотонность отделки. Кухня имеет Г-образную форму и узкую полубарную стойку на подоконнике декоративного окна. Окно, витрина и стеклянная дверь выполнены в едином стиле с черными декоративными элементами.

Санузел выполнен в холодных темных тонах с акцентными элементами под дерево и контрастными черными деталями, которые делают интерьер более графичным, подчеркивают формы и акценты. Стены выложены однотонной плиткой. Интересным решением стал потолок — единственный двухуровневый в квартире.

Санузел

Детская

Данная комната разрабатывалась для ребенка-школьника. Так как площадь помещения небольшая, было принято решение «связать» пространство единой конструкцией и оставить пространство в центре. Вся мебель выполнена в нейтральных цветах — белый и дерево орех, который подойдет для детей любого возраста и не потребует замены по мере взросления.

Мастер спальня для заказчиков выполнена в прохладных серо-бежевых тонах с акцентами голубого цвета и белыми элементами. Основной объем стен окрашен в светлый серый цвет. Стена за кроватью акцентная: здесь наклеены декоративные ребристые панели синего цвета и молдинги в цвет стен, конструктивно расположено окно и шторы. Так как кровать стоит на отдалении от стены из-за радиатора и шторного карниза, использовано настольное вечернее освещение и торшер.

Мастер спальня