Проект в ЖК Ever

ЖИлые помещения

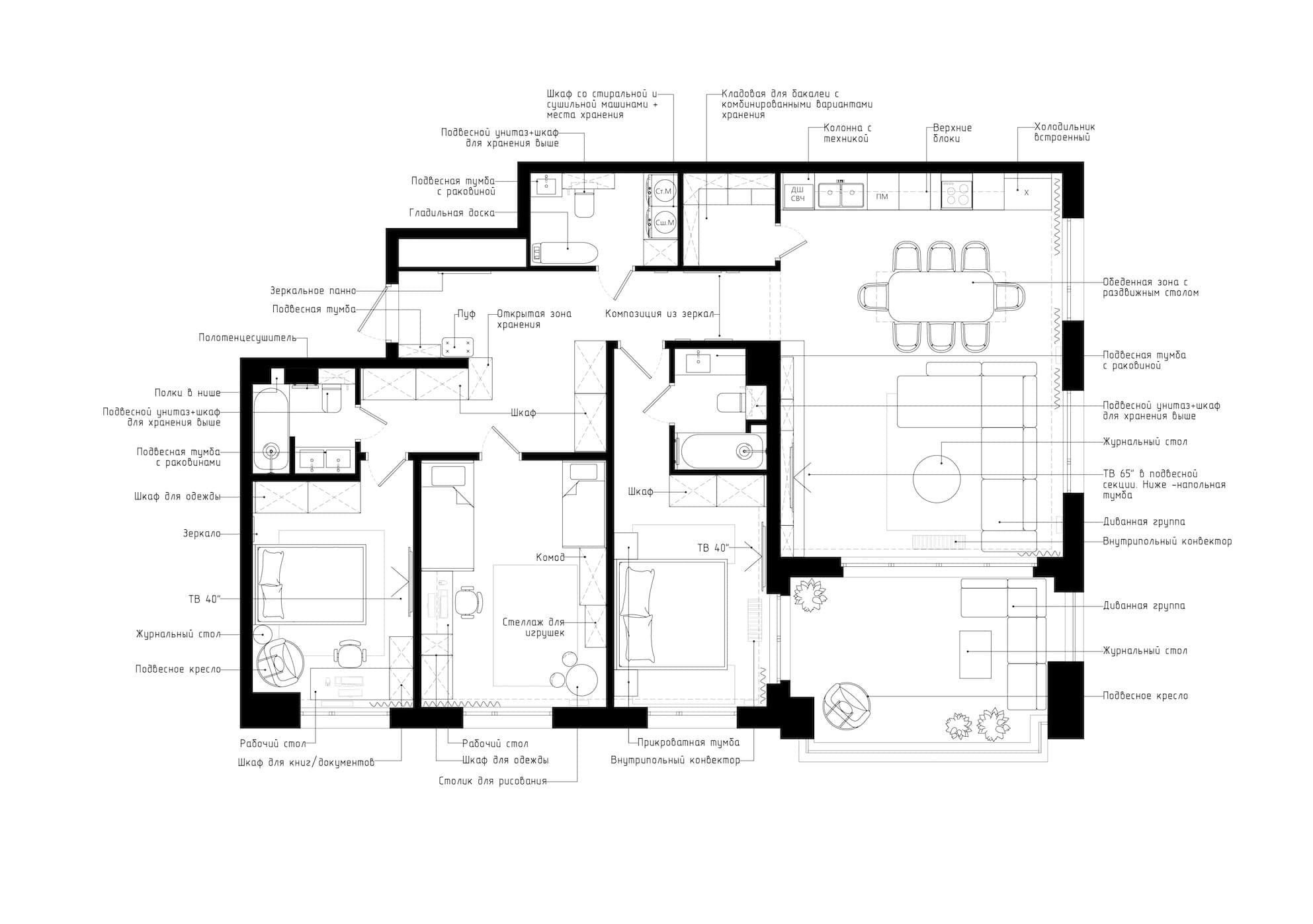
Здесь находятся входы практически во все помещения в квартире. Коридор имеет сложную форму. Все шкафы в квартире имеют высоту не более 3 метров, из-за этого над встроенной мебелью часть потолка зашивается. Отличительной особенностью квартиры являются очень высокие потолки в 3,74 м после установки напольной стяжки. Так как коридор представляет собой по сути длинное и узкое помещение, чтобы визуально компенсировать эту вытянутость и избежать ощущение туннеля, было применено несколько визуальных приёмов для гармонизации пространства: так потолок и верхний участок стен были окрашены в более темный цвет по сравнению с основным цветом стен — это создало впечатление, что потолок ниже, чем он есть на самом деле; помимо этого было использовано декоративное оформление стен зеркалами — обычно зеркала не располагают друг напротив друга, чтобы избежать эффекта бесконечного повторения, но в данном случае это помогло создать иллюзию расширения пространства.

Дизайн-проект квартиры разработан в стиле современная классика. В отделке использованы оттенки бежевого цвета с использованием ярких акцентов в детской зоне. Также вся фурнитура, сантехника и светильники подобраны в золотой отделке. Изначально в квартире имелось только условное место расположение перегородок, в ходе разработки планировочного решения первоначальная планировка была доработана, с учетом сохранения влажных зон.

Прихожая и коридор

#открытая терраса
#современная классика
#рифлёные фасады
#золотая фурнитура

Квартира

Современная классика

139,8м²

Кухня-гостиная — основное пространство в квартире, где собирается вся семья и принимают гостей. Помещение разделено на несколько зон, которые плавно переходят друг в друга: зона кухни в виде кухонного гарнитура вдоль одной стены; обеденная зона с большим раскладным столом на 8−12 персон; и зона гостиной с большим угловым диваном, журнальным столиком и мебельной стенкой со встроенным в неё телевизором. Мебель выполнена в современном стиле с прямыми и рифлёными фасадами двух цветов — белого и на несколько тонов темнее, чем стены, со встроенными ручками и техникой. На пол уложена кварцвиниловая плитка. Стены окрашены в светло-бежевый цвет. Потолок подвесной с классическим карнизом по периметру.

Кухня–гостиная

Мастер спальня

Мастер-спальня имеет несколько необычную форму с небольшим коридором при входе. Такая планировка обусловлена тем, что часть помещения была отгорожена и там находится личный санузел владельцев квартиры. Интересными деталями в помещении являются кровать с высоким мягким изголовьем, которое помимо прямой функции также играет роль мягких настенных панелей, и нестандартная фрезеровка фасадов шкафа, которые визуально объединяют две дверцы, так что создается впечатление, что всего имеется не 8 фасадов, а 4. Для отделки использованы те же материалы и цвета, что и в общих помещениях (кварцвиниловая напольная плитка, покраска стен, подвесной потолок с карнизом), но при этом стены дополнительно декорированы рамками из молдингов.

Мастер-Санузел

Личный санузел при мастер-спальне имеет небольшую площадь, но тут удобно разместилось всё необходимое оборудование и мебель: ванна, электрический полотенцесушитель, подвесной унитаз на инсталляции и шкаф для хранения над ним, большая тумба с раковиной и зеркало. Все смесители встроенные — имеют скрытый монтаж в стену. В углу у ванны получилось организовать секцию со встроенными полками для удобного размещения мыла и шампуней. Так как пространство между тумбой и унитазом небольшое было принято решение устроить открытые полки, так как не получалось бы обеспечить удобное открывание для распашного фасада или выдвижных ящиков. Мебель выполнена в бежевом цвете, фасады повторяют фасады шкафа в мастер-спальне и рельефные панели вдоль потолка, сантехнические приборы подобраны в белом цвете, а смесители и фурнитура — в золотом.

Эта детская комната, в которой будет проживать старшая из дочерей. Также предполагается использовать данную спальню как гостевую, в то время как старшая дочь сможет несколько ночей провести во второй детской спальне. Мебель выполнена в белом и бежевом цветах с простой фрезеровкой. На пол здесь уложена кварц-виниловая плитка. Основной объем стен окрашен в светло-бежевый цвет, стена напротив кровати оклеяна дизайнерскими обоями серии Lines от Affresco. Потолок подвесной двухуровневый: над кроватью в потолке устроено круглое углубление со скрытой подсветкой.

Детская комната

Особым местом в квартире является большая открытая терраса, выходы на которую расположены в кухне-гостиной и мастер-спальне. Тут расположена садовая мебель в виде модульного дивана со съемными подушками, подвесное кресло и напольные вазоны для уличных растений. Для освещения используются настенные бра и подвесные уличные гирлянды, растянутые на потолке. В качестве дополнительно декоративного освещения были установлены напольные уличные светильники-шары.

Терраса