прихожая

Проект квартиры

Проект на
ул. Верхние поля

ЖИлые помещения

Войдя в квартиру, мы оказываемся в прихожей, из которой открывается частичный вид на зону гостиной. В прихожей предусмотрено большое зеркало с подсветкой и подвесная консоль для мелочей. Достаточное количество освещения не делает помещение мрачным и тусклым.

#мох
#лофт
#черная_кухня

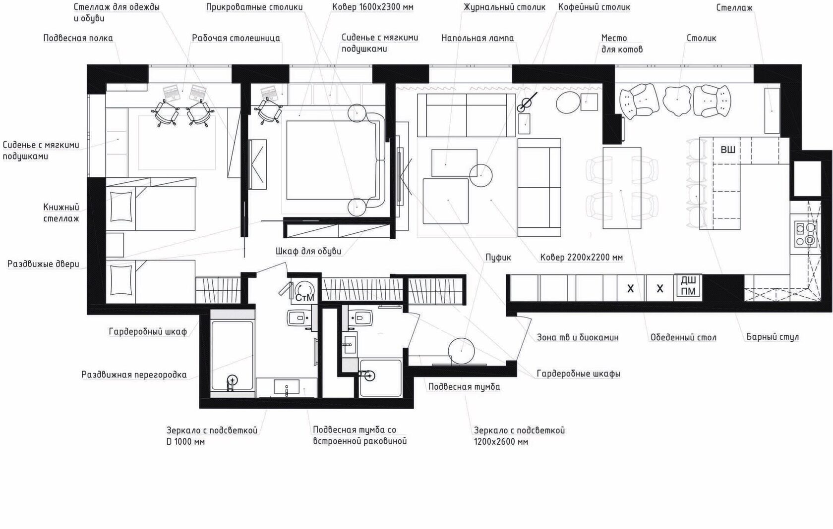
Квартира принадлежит семье из четырех человек: родителям и двум сыновьям 12-ти лет. Основным пожеланием заказчиков было получить просторные помещения с максимальным размещением зон хранения. В основе стилистики проекта — лофт в сочетании с минимализмом. Данное слияние стилей позволило создать легкую атмосферу с акцентами на брутальных деталях. Цвета в проекте подобраны в нейтральной черно-белой гамме с добавлением акцентных тонов. Интересной идеей является использование RGB подсветки в нишах потолка. Данное решение позволяет менять цвет освещения, а с ним и общую атмосферу помещения.

Квартира

Лофт

82,9м²

Кухня-гостиная включает в себя три зоны: кухня, столовая, гостиная. Используются натуральные природные текстуры. Освещение продумано в нескольких возможных сценариях. Закарнизная подсветка в нишах для штор, подсветка в нишах потолка, кроме ленточной светодиодной подсветки есть трековая система, что даёт возможность перемещать и направлять источники освещения куда захочется, по треку, есть подсветка в мебели, и конечно же есть встроенные, накладные и подвесные источники освещения.

Любой стиль лофт и минимализм хочется оживить, добавляя не только цвета, но и новые ощущения, и в этот момент появилось вертикальное озеленение из декоративного мха на стене, в кофейной зоне отдыха на лоджии.

Кухня-гостиная/Лоджия

спальня

В спальне предусмотрена рабочая зона с отделкой вертикальным озеленением из декоративного мха, а также зона отдыха у окна. Черное зеркало в изголовье кровати визуально увеличивает пространство.

Детская

Детская продумана до мелочей, здесь есть всё для комфортного времяпрепровождения и отдыха детей. Комната разделена на две основных зоны — спальную и рабочую. Просторная рабочая зона спроектирована по канонам эргономики. Братья большие любители комиксов и Marvel. Атмосферности помещению придает карнизная подсветка неоново-красного цвета.

санузел

В просторном санузле располагается постирочный блок, со встроенной стиральной и сушильной машиной, обыгранный армированной сеткой. Интересно решены ниши с подсветкой по периметру и стеклянными полочками для хранения. В отделке использованы природные текстуры дерева, антрацитового камня и бетона.