Проект в КП Большая вода

загородные дома

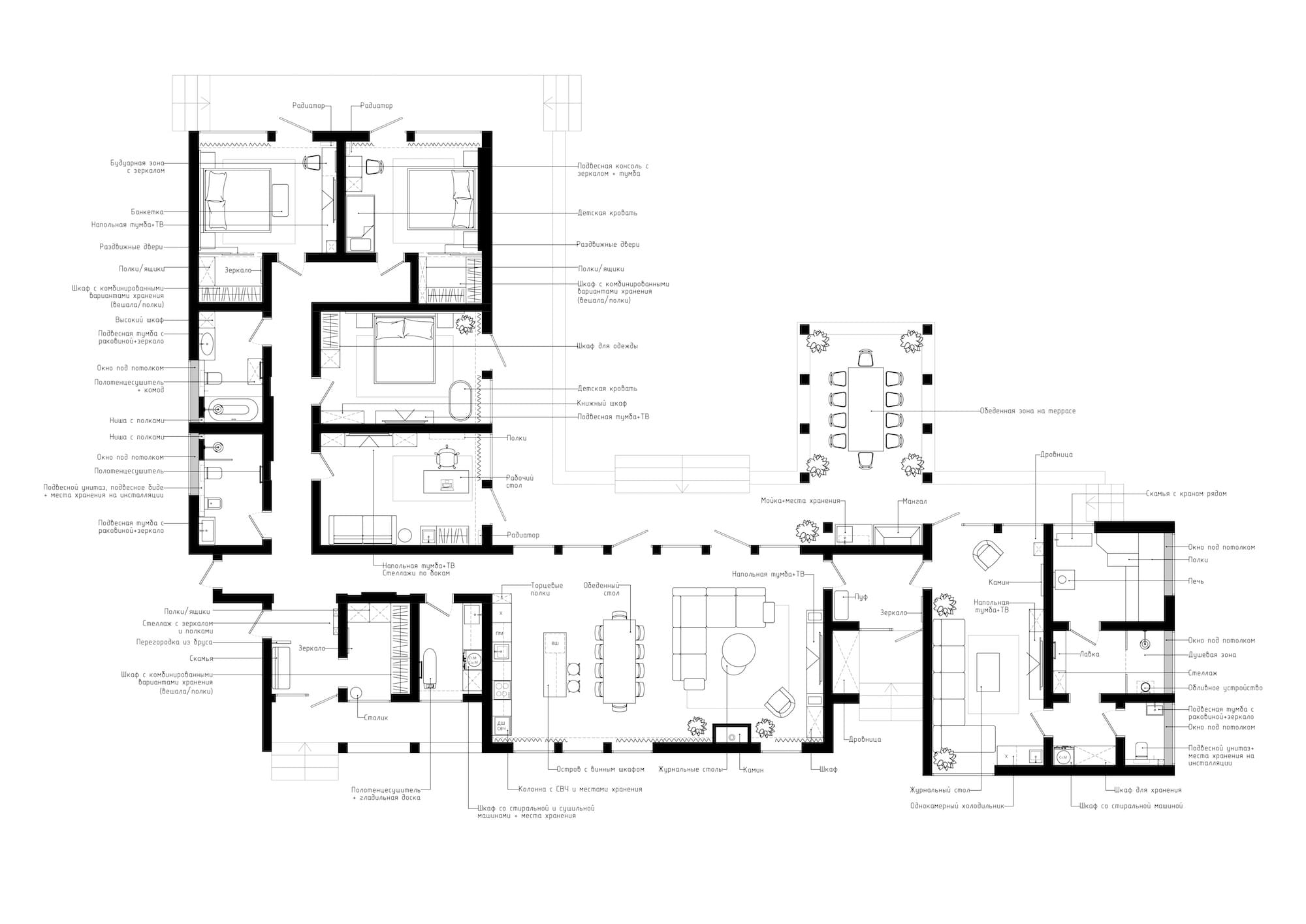
Входная группа с большим окном и дверью из стекла. На входе зона со скамьей, за ней крючки для верхней одежды, эта зона отделена перегородкой из реек, чтобы не бросалась одежда в глаза. Стена за скамьей выделена латунным большими листами, который отлично сочетается с деревом. В гардеробе комбинированная система хранения с открытыми и закрытыми шкафами и еще одно большое зеркало.

Проект большого загородного дома объединяет уют шале, сдержанную элегантность минимализма и мудрую простоту джапанди. Внутреннее пространство организовано на принципах минимализма: доминируют лаконичные формы мебели, монохромная палитра и минимум декора. Каждая деталь функциональна, линии просты и чётки, а обилие открытых пространств подчёркивает эффект «меньше — больше». Одновременно прослеживается влияние стиля джапанди: интерьер выдержан в нейтральных натуральных оттенках, при этом основное внимание уделено качеству материалов и гармонии пространства.

Прихожая, гардероб и коридор

Дом

Шале, Минимализм

267 м²

#натуральные материалы
#дерево
#черная сантехника

Самое огромное и красивое помещение в доме, его сердце — гостиная и кухня на 60 квадратов. Кухня-гостиная оформлена в современной эклектике с элементами природной эстетики. В отделке использованы текстуры натурального дерева, камня и металла, что придаёт пространству уют и благородство. Центральным акцентом выступает авторский светильник, объединяющий зону отдыха и обеденный стол. Мягкий модульный диван, кофейный стол из спила дерева и камин создают расслабляющую атмосферу для общения и отдыха.

Кухня-гостиная

Очень приятное пространство для девушки выполнение в светлых тонах. Интерьер спальни наполнен светом, природными фактурами и ощущением покоя. Акцентной деталью стала деревянная вставка в изголовье кровати, подчёркнутая текстурной штукатуркой с круговыми рельефами. Хрупкая люстра в форме ветвей добавляет воздушности и завершает образ лёгкой, естественной гармонии.

Спальня 1

Интерьер спальни выдержан в тёплой и мужественной палитре с акцентом на натуральные материалы. Глубокие оттенки дерева сочетаются с графитовыми поверхностями и мягким текстилем. Тёмная акцентная стена за изголовьем добавляет глубины, а подсветка создаёт уютную атмосферу. Пространство дополнено встроенной системой хранения и компактной рабочей зоной, сохранив баланс между функциональностью и стилем.

Спальня 2

Минималистичный интерьер ванной оформлен в светлой натуральной гамме с акцентом на текстуру дерева. Стены отделаны светлым керамогранитом с мягким рисунком, перекликающимся с древесной отделкой. Мебель лаконична, но функциональна: есть открытые полки, подсветка и смарт-зеркало. Черная сантехника добавляет графичности и современного акцента.

Ванная комната

Комната отдыха оформлена в тёплой природной палитре с акцентом на натуральные материалы. Стены и мебель выполнены из дерева, создавая уютную атмосферу загородного уюта. Центральным декоративным элементом выступает панно из спилов дерева, дополненное бра, создающими мягкое рассеянное освещение. Пространство зонировано на комфортную лаунж-зону с диванами и мини-кухней, а панорамные окна обеспечивают визуальное единение с садом.

Комната отдыха

Помещение, обладающее волшебной силой дерева и ароматом трав. В парной разместилась каменка облицованная толькохлоритом от технолита «Гром 30». На противоположной стороне угловая зона для парения из массива Кело. Стены облицованы полубревном келло, а потолок доской келло, что добавит огромный тепловой запас для помещения и незабываемый аромат в скупе с травами.

Парная

Из гостиной и комнаты отдыха можно попасть на террасу в зону барбекю. Центральным элементом выступает массивный деревянный стол с лаконичными черными стульями, рассчитанный на большую компанию. Фасад кухни выполнен из темного дерева и графитового металла, дополняется встроенной печью и грилем. Подсветка, вьющиеся растения и теплое освещение придают пространству расслабленное настроение и подчеркивают связь с природой.

Терраса