Проект в с. Богословское

загородные дома

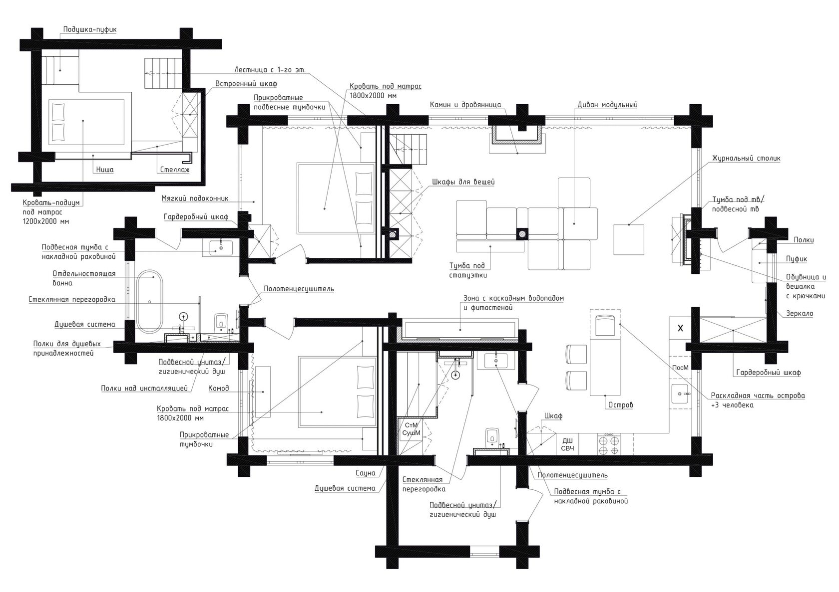
Для сохранения текстуры дерева, вместо краски использовался лак. Помещения разделены с более темным лаком и преобладающим черным цветом в мебели и противоположные светлые стены с белой мебелью. В прихожей разместился шкаф купе с реечными дверьми и тонированным стеклом за ними, подвесное с потолка зеркало в металлическом каркасе и подвесная мягкая зона. Освещение выполнено трековыми светильниками на магнитном профиле.

Проект загородного дома, основной задачей которого было сохранить текстуру дерева, использовать максимально природные материалы и элементы индийской культуры. Проект был разработан с преобладанием темных оттенков, которые прослеживаются в каждом помещении. Например, в отделке стен, выбранной фурнитуре и мебели. За счет того, что в доме панорамные окна, в каждом помещении достаточное количество света и можно в любой момент полюбоваться сосновым лесом. В гостиной на стене мы предусмотрели интересное решение декора - водопад с фитостеной.

Прихожая

#индийская культура
#дерево
#водопад
#панорамные окна

Загородный дом

Современный/Шале

118м²

Из прихожей в гостиную ведет тонированная дверь в металлическом корпусе от ProfilDoors. Это самое большое и основное помещение в доме. По центру расположился большой модульный диван с несколькими направлениями для посадки: на камин, на телевизор, на большие панорамные окна и на водопад. Мебель выполнена в стиле лофт из дерева и металла. В проходе расположился каскадный водопад с фито стенами и камнями. Дополнительно в этой зоне предусмотрено окно в крыше. Камин выложен из того же материала что и водопад. В гостиной расположилась лестница на спальню 2го этажа и шкаф, встроенный в нишу и покрашенный в цвет стен.

Гостиная

кухня

На кухне присутствует остров с трансформирующейся столешницей для большой компании. Он расположен так чтобы на завтрак можно было смотреть на рассвет в окно кухни. Сама кухня выполнена в строгом черно белом стиле со скрытыми ручками, часть шкафов со стеклянными тонированными фасадами. Освещение как в коридоре минималистичное с трековыми светильниками.

Хозяйская спальня выполнена в темной гамме. Стена за кроватью из 3D панелей и искусственного скалистого камня. Парящая мягкая кровать с подсветкой и прикроватные тумбы выстраиваются в единую линию. Дополнительно в комнате расположился комод, так как основная одежда будет храниться в шкафу гостиной. Потолок выкрашен в черный и имеет точечные встроенные светильники без бортика, которые не привлекают внимания.

Спальня 1-ый этаж

Над спальней 1-го этажа находится комната с невысокими потолками. Матрас утоплен в подиум, который переходит в напольное кресло. Дополнительно из мебели разместился небольшой стеллаж и шкаф, который огибает дополнительные опоры из бруса. Лестница ведет в гостиную. Комната предназначена не для постоянного проживания, а для размещения и отдыха гостей.

Спальня 2-й этаж

Санузел выполнен из коллекции крупноформатного керамогранита и покрытием стен темным лаком. Но здесь также использован материал искусственной скалы, и цветовая гамма повторяет темную спальню. У окна находится отдельно стоящая ванна из искусственного камня. Раковина подвесная разделенная на две секции. Дополнительная стеклянная дверь ведет на террасу.

Санузел